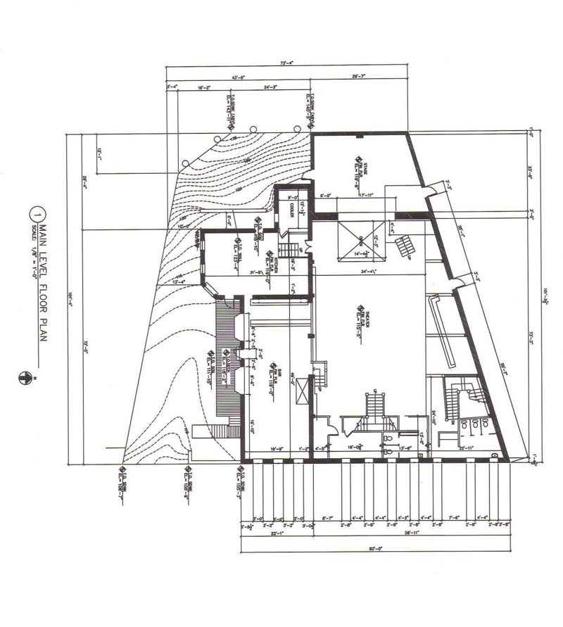
Historic Belvidere Theater Central City

Historic Belvidere Theater and Concert Hall

Niccolo Casewit- Impresario, directed the production of the first Central City Millennium Celebration. He Organized New Years Fundraiser with “The Shady Ladies” of “The City of Central ” and the Centennial Philharmonic “little' Vienna Chamber Orchestra”, Central City, CO (Mid-Night 1999-2000)

Also at the Belvidere : Niccolo Casewit :   Design Architect , created plans restoring the historic proscenium stage, main entry, staircase. Structural Conservation and Future proposed additions and improvements pending funding.

Kenneth LaGreca, Architect and Engineer of Record , Mountain Design Group, (1999-2000)

 

Our Office is centrally located at:
355 Lowell Blvd.
Denver, Colorado 80219 U.S.A.

Phone: 303-935-0277
Email: Niccolo@environmentalproductions.com